Casa indipendente in vendita

Cantalice, Via Giovanni Pascoli
€ 89.000
3 locali 3 locali
120 Mq 120 Mq
1 bagno 1 bagno

Casa indipendente in vendita

Cantalice, Via Giovanni Pascoli

Descrizione annuncio

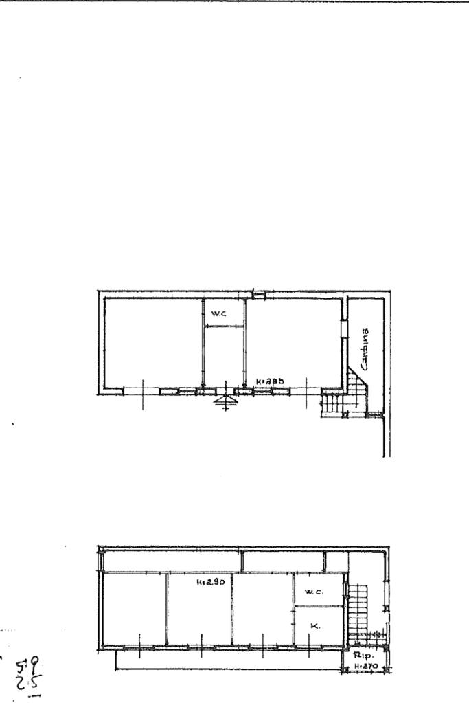
Nel comune di Cantalice (RI), proponiamo in vendita soluzione indipendente con giardino di 2000 mq ca immersa nel verde e nella tranquillità.

La casa ha una superficie calpestabile di 60 mq ed è cosi composta:

soggiorno con camino, cucina, 2 camere da letto matrimoniali e da 1 bagno con vasca.

Da tutti gli ambienti è possibile accedere al balcone di 13 mq.

Completa la proprietà 1 garage di 30 mq ca e 1 cantina di 30 mq ca.

Si ha inoltre la possibilità di acquistare separatamente un terreno agricolo di 17050 mq ad 40.000.

La casa, presenta pavimenti in grès , infissi in legno vetro singolo con tapparelle e porte in legno. Le utenze di acqua e luce sono dirette mentre, non è presente l'impianto di riscaldamento.

La posizione, è aperta e panoramica, con vista sulle montagne circostanti. Tutto ciò rende gli ambienti luminosi.

Cantalice è uno dei borghi più caratteristici del reatino, situato a 660 e gode di un panorama unico sulla Riserva Naturale dei laghi Lungo e Ripasottile. A poca distanza dall'abitazione ci sono tutti i principali servizi: Supermercati, scuole, banca , posta e altre attività commerciali. In 10 minuti si raggiunge Rieti città e in 1 ora e mezza Roma.

Mostra tutto

Nelle vicinanze

Trasporto pubblico Trasporto pubblico
Trasporto pubblico
840 m
Scuole Scuole
Scuole
2,0 Km
Supermercati Supermercati
Carrefour
2,7 Km
Ristoranti Ristoranti
La Foresta
2,1 Km
Papilla
2,2 Km
Mostra tutto

Caratteristiche

Rif.:
61108819
Piano:
2 di 2 (Piano basso)
Box:
1
Posti auto:
2
Balconi:
1
Camere da letto:
2
Mostra tutto
Prezzo Prezzo
€ 89.000
Rata mutuo Rata mutuo
€ 420 / mese
Spese annue Spese annue
€ 0
Proponi il tuo prezzoProponi il tuo prezzo

Classe Energetica

G
G
G
G
G
G
G
G
G
EP globale non rinnovabile:
359.68 kW h/m² anno
EP globale rinnovabile:
0.00 kW h/m² anno
EP invernale del fabbricato:
EP estiva del fabbricato:
Anno di costruzione:
1960
Riscaldamento:
Assente

Ti interessa visionare l'immobile?

Fissa un appuntamento  Fissa un appuntamento

Richiedi informazioni

Clicca su Leggi per aprire l'informativa
* Questi campi sono obbligatori

Calcola il tuo mutuo

Semplice e senza impegno
Anticipo

( % )
Mutuo

( % )

pochi semplici passi

inserisci i tuoi dati
Questionario completato
Grazie per aver richiesto un appuntamento senza impegno con un nostro Consulente del Credito e Assicurativo.

Hai inserito correttamente tutti i dati necessari e a breve riceverai una e-mail con un link da convalidare per inviare i tuoi dati.
Affiliato
Grupposabinacavour Srl
P.zza Cavour, 4 02100 Rieti (RI)

Il nostro staff


  • Roberto Marino
    Affiliato

  • Debora Rosati
    Coordinatrice
P.zza Cavour, 4 02100 Rieti (RI)
Zona: Rieti - Terminillo
Mostra su mappa
Orari: lunedì-venerdì 08.30-13.00/15.00-19.30; sabato 08.30-17.30
Affiliato
Grupposabinacavour Srl
P.zza Cavour, 4 02100 Rieti (RI)

2025 Tecnocasa Franchising S.p.A. - P. IVA 08365160152 - Via Monte Bianco 60/A 20089 Rozzano (MI). Ogni agenzia ha un proprio titolare ed è autonoma. Privacy policy | Policy utilizzo | Cookie policy