Casa indipendente in vendita

Cantalice, Via Antonio Gramsci - Collemare
€ 179.000
7 locali 7 locali
215 Mq 215 Mq
2 bagni 2 bagni

Casa indipendente in vendita

Cantalice, Via Antonio Gramsci - Collemare

Descrizione annuncio

Nel comune di Cantalice (RI), proponiamo in vendita soluzione indipendente, già suddivisa in 2 unità abitative, con giardino di 200 mq e terreno agricolo di 1840 mq, immersa nel verde e nella tranquillità.

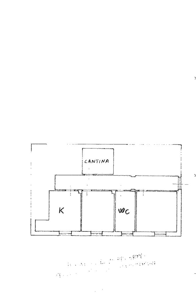
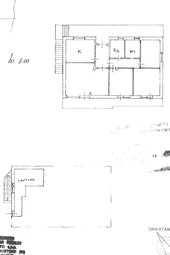
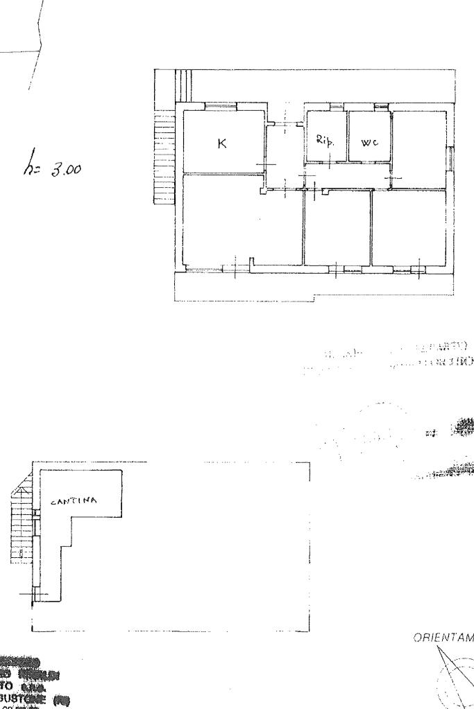
La casa ha una superficie calpestabile di 215 mq ed è cosi composta:

Al piano terra soggiorno, cucina abitabile con camino, 3 camere da letto ,1 bagno con vasca e 1 ripostiglio. Dalla zona giorno e da 2 delle camere matrimoniali è possibile accedere al balcone comunicante;

Al piano seminterrato soggiorno, cucina, 1 camera da letto, 1 bagno con vasca e 1 locale lavanderia.

Completano la proprietà 1 garage di 36 mq e 1 cantina di 9 mq.

La casa realizzata nel 1967, presenta pavimenti in vecchia monocottura e parquet nella zona notte , infissi interni in legno vetro singolo ed esterni in alluminio vetro singolo. Le utenze di acqua e luce sono dirette mentre, l'impianto di riscaldamento risulta staccato.

La posizione, è aperta e panoramica, con vista sulle montagne circostanti. Tutto ciò rende gli ambienti luminosi.

Cantalice è uno dei borghi più caratteristici del reatino, situato a 660 e gode di un panorama unico sulla Riserva Naturale dei laghi Lungo e Ripasottile. A poca distanza dall'abitazione ci sono tutti i principali servizi: Supermercati, scuole, banca , posta e altre attività commerciali. In 10 minuti si raggiunge Rieti città e in 1 ora e mezza Roma.

Mostra tutto

Nelle vicinanze

Trasporto pubblico Trasporto pubblico
Trasporto pubblico
2,0 Km
Capolinea Cotral
Capolinea Cotral
2,6 Km
Farmacia Farmacia
Farmacia
2,3 Km
Supermercati Supermercati
Alimentari Panfilo
2,6 Km
Negozi Negozi
Minimarket
2,3 Km
Conad
2,4 Km
Bar Bar
Bar Veronica
1,7 Km
Bar Francescano
2,3 Km
Bar Petrangeli
2,4 Km
Ristoranti Ristoranti
Agriturismo La Collina
1,6 Km
L'Antico Arco
2,2 Km
Locanda Francescana
2,3 Km
Ristorante Pizzeria la Pannocchia
2,3 Km
Mostra tutto

Caratteristiche

Rif.:
61109287
Piano:
2 di 2 (Piano basso)
Box:
1
Posti auto:
2
Balconi:
1
Camere da letto:
4
Mostra tutto
Prezzo Prezzo
€ 179.000
Rata mutuo Rata mutuo
€ 846 / mese
Spese annue Spese annue
€ 0
Proponi il tuo prezzoProponi il tuo prezzo

Classe Energetica

G
G
G
G
G
G
G
G
G
EP globale non rinnovabile:
348.15 kW h/m² anno
EP globale rinnovabile:
0.00 kW h/m² anno
EP invernale del fabbricato:
EP estiva del fabbricato:
Anno di costruzione:
1967
Riscaldamento:
Autonomo
Tipo impianto:
A stufa
Tipo alimentazione:
Altro

Ti interessa visionare l'immobile?

Fissa un appuntamento  Fissa un appuntamento

Richiedi informazioni

Clicca su Leggi per aprire l'informativa
* Questi campi sono obbligatori

Calcola il tuo mutuo

Semplice e senza impegno
Anticipo

( % )
Mutuo

( % )

pochi semplici passi

inserisci i tuoi dati
Questionario completato
Grazie per aver richiesto un appuntamento senza impegno con un nostro Consulente del Credito e Assicurativo.

Hai inserito correttamente tutti i dati necessari e a breve riceverai una e-mail con un link da convalidare per inviare i tuoi dati.
Affiliato
Grupposabinacavour Srl
P.zza Cavour, 4 02100 Rieti (RI)

Il nostro staff


  • Roberto Marino
    Affiliato

  • Debora Rosati
    Coordinatrice
P.zza Cavour, 4 02100 Rieti (RI)
Zona: Rieti - Terminillo
Mostra su mappa
Orari: lunedì-venerdì 08.30-13.00/15.00-19.30; sabato 08.30-17.30
Affiliato
Grupposabinacavour Srl
P.zza Cavour, 4 02100 Rieti (RI)

2026 Tecnocasa Franchising S.p.A. - P. IVA 08365160152 - Via Monte Bianco 60/A 20089 Rozzano (MI). Ogni agenzia ha un proprio titolare ed è autonoma. Privacy policy | Policy utilizzo | Cookie policy