Casa indipendente in vendita

Cantalice, Via Goffredo Mameli
€ 139.000
5 locali 5 locali
200 Mq 200 Mq
2 bagni 2 bagni

Casa indipendente in vendita

Cantalice, Via Goffredo Mameli

Descrizione annuncio

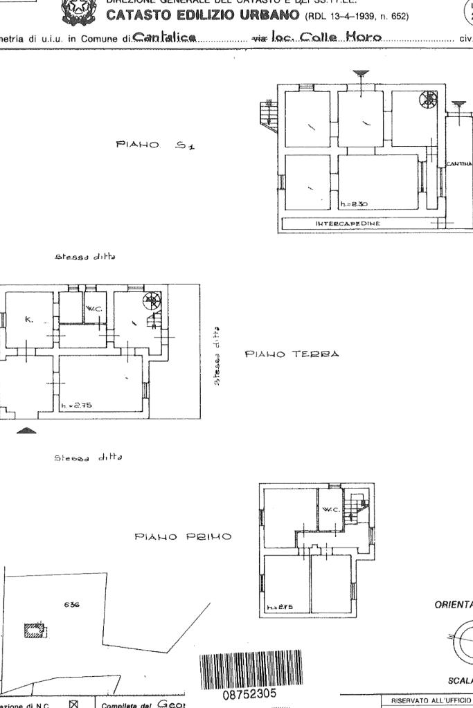
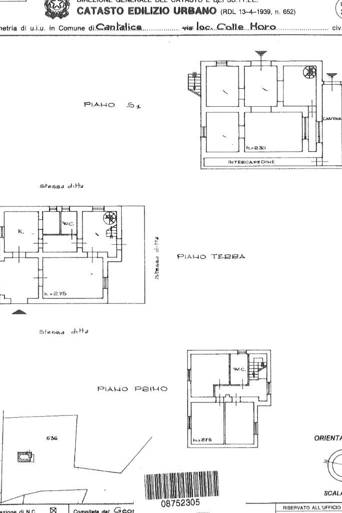
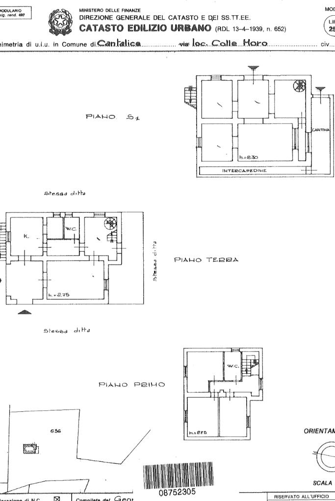
Nel comune di Cantalice (RI), proponiamo in vendita soluzione indipendente con giardino e terreno privato di 13513 mq immersa nel verde e nella tranquillità.

La casa ha una superficie calpestabile di 130 mq e si sviluppa su 2 livelli:

Al piano terra, soggiorno con termocamino, cucina abitabile, veranda e 1 bagno con doccia;

Al primo piano, 1 camere da letto matrimoniale dotata di cabina armadio, 2 camerette e 1 bagno con vasca/doccia.

Completano la proprietà 1 garage di 23 mq ca e 5 cantine da adibire a taverna al piano sottostrada.

La casa realizzata nel 1978, termo-autonoma, presenta pavimenti in grès , infissi in legno doppio vetro con persiane e zanzariere e porte in legno. La scala interna in legno , che collega i piani, è comoda e ben praticabile.

La posizione, è aperta e panoramica, con vista sulle montagne circostanti. Tutto ciò rende gli ambienti luminosi.

Cantalice è uno dei borghi più caratteristici del reatino situato a 660 . A poca distanza dall’abitazione ci sono tutti i principali servizi: Supermercati, scuole, banca , posta e altre attività commerciali. In 15 minuti si raggiunge Rieti città e in 1 ora e mezza Roma.

Mostra tutto

Nelle vicinanze

Trasporto pubblico Trasporto pubblico
Trasporto pubblico
450 m
Supermercati Supermercati
Alimentari Panfilo
530 m
Negozi Negozi
Minimarket
790 m
Bar Bar
Bar Petrangeli
670 m
Ristoranti Ristoranti
Ristorante Pizzeria la Pannocchia
810 m
Rosce Caffe
2,3 Km
Mostra tutto

Caratteristiche

Rif.:
61115988
Piano:
1 di 2 (Piano basso)
Box:
1
Posti auto:
2
Camere da letto:
3
Arredamento:
Assente
Mostra tutto
Prezzo Prezzo
€ 139.000
Rata mutuo Rata mutuo
€ 656 / mese
Spese annue Spese annue
€ 0
Proponi il tuo prezzoProponi il tuo prezzo

Classe Energetica

G
G
G
G
G
G
G
G
G
EP globale non rinnovabile:
374.49 kW h/m² anno
EP globale rinnovabile:
0.00 kW h/m² anno
EP invernale del fabbricato:
EP estiva del fabbricato:
Anno di costruzione:
1978
Riscaldamento:
Autonomo
Tipo impianto:
A radiatori
Tipo alimentazione:
Altro

Ti interessa visionare l'immobile?

Fissa un appuntamento  Fissa un appuntamento

Richiedi informazioni

Clicca su Leggi per aprire l'informativa
* Questi campi sono obbligatori

Calcola il tuo mutuo

Semplice e senza impegno
Anticipo

( % )
Mutuo

( % )

pochi semplici passi

inserisci i tuoi dati
Questionario completato
Grazie per aver richiesto un appuntamento senza impegno con un nostro Consulente del Credito e Assicurativo.

Hai inserito correttamente tutti i dati necessari e a breve riceverai una e-mail con un link da convalidare per inviare i tuoi dati.
Affiliato
Grupposabinacavour Srl
P.zza Cavour, 4 02100 Rieti (RI)

Il nostro staff


  • Roberto Marino
    Affiliato

  • Debora Rosati
    Coordinatrice
P.zza Cavour, 4 02100 Rieti (RI)
Zona: Rieti - Terminillo
Mostra su mappa
Orari: lunedì-venerdì 08.30-13.00/15.00-19.30; sabato 08.30-17.30
Affiliato
Grupposabinacavour Srl
P.zza Cavour, 4 02100 Rieti (RI)

2025 Tecnocasa Franchising S.p.A. - P. IVA 08365160152 - Via Monte Bianco 60/A 20089 Rozzano (MI). Ogni agenzia ha un proprio titolare ed è autonoma. Privacy policy | Policy utilizzo | Cookie policy