Casa semindipendente in vendita

Greccio, Via collemare - Limiti Di Greccio
€ 20.000
Prezzo aggiornato
3 locali 3 locali
90 Mq 90 Mq
2 bagni 2 bagni

Casa semindipendente in vendita

Greccio, Via collemare - Limiti Di Greccio

Descrizione annuncio

Nella frazione di Limiti di Greccio (RI), proponiamo in vendita soluzione semi indipendente da ristrutturare dotata di ingresso autonomo e giardino recintato privato di 300 mq con annesso agricolo C6 di 40 mq ca.

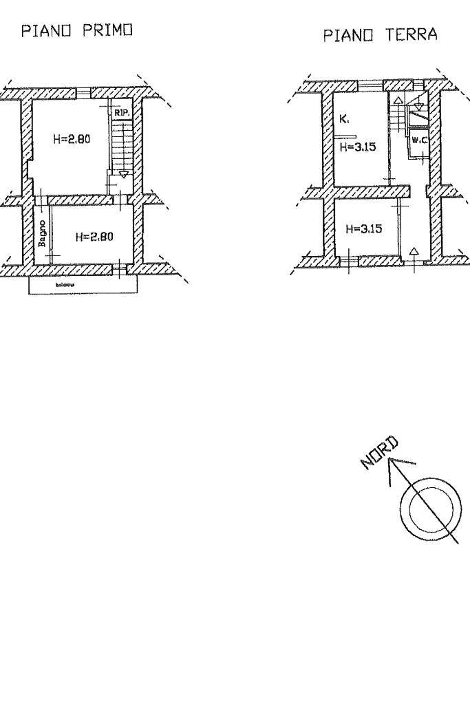
L’ immobile ha una superficie calpestabile di 90 mq ed è cosi composto:

al piano terra da un ampia cucina, 1 camera da letto con balcone e 1 bagno di servizio;

al piano primo da 2 camere da letto di cui una dotata di balcone e da 1 bagno con doccia accessibile da entrambe le stanze.

Completano la proprietà un giardino staccato dall’ abitazione di 300 mq con un annesso agricolo C6 e un posto auto scoperto.

La soluzione , termo-autonoma, presenta pavimenti in grès, porte in legno e infissi in legno vetro singolo con persiane.

La proprietà è facilmente raggiungibile ed è ideale per chi è alla ricerca di un luogo tranquillo, lontano dal caos ma che allo stesso tempo non vuole rinunciare alla comodità di avere i principali servizi a pochi minuti di distanza.

Mostra tutto

Nelle vicinanze

Trasporto pubblico Trasporto pubblico
Greccio
Greccio
1,1 Km
fermata a richiesta
fermata a richiesta
440 m
Negozi Negozi
Mini Market
2,5 Km
Bar Bar
Bar Ristoro Greccio 2000
1,4 Km
Bar
1,8 Km
Ristoranti Ristoranti
Trattoria Pizzeria La Contadina
1,4 Km
Ristoranti
1,8 Km
Agriturismo Le Chiuse di Reopasto
2,1 Km
Hosteria di Nonna Gilda
2,4 Km
Mostra tutto

Caratteristiche

Rif.:
61125978
Piano:
2 di 2 (Piano medio)
Posti auto:
1
Balconi:
1
Camere da letto:
3
Arredamento:
Assente
Mostra tutto
Prezzo Prezzo
€ 20.000
Rata mutuo Rata mutuo
€ 94 / mese
Spese annue Spese annue
€ 0
Proponi il tuo prezzoProponi il tuo prezzo

Classe Energetica

G
G
G
G
G
G
G
G
G
EP globale non rinnovabile:
288.99 kW h/m² anno
EP globale rinnovabile:
0.00 kW h/m² anno
EP invernale del fabbricato:
EP estiva del fabbricato:
Anno di costruzione:
1942
Riscaldamento:
Autonomo
Tipo impianto:
A radiatori
Tipo alimentazione:
Metano

Prezzo ridotto di €1 (32%%)

Ti interessa visionare l'immobile?

Fissa un appuntamento  Fissa un appuntamento

Richiedi informazioni

Clicca su Leggi per aprire l'informativa
* Questi campi sono obbligatori

Calcola il tuo mutuo

Semplice e senza impegno
Anticipo

( % )
Mutuo

( % )

pochi semplici passi

inserisci i tuoi dati
Questionario completato
Grazie per aver richiesto un appuntamento senza impegno con un nostro Consulente del Credito e Assicurativo.

Hai inserito correttamente tutti i dati necessari e a breve riceverai una e-mail con un link da convalidare per inviare i tuoi dati.
Affiliato
Grupposabinacavour Srl
P.zza Cavour, 4 02100 Rieti (RI)

Il nostro staff


  • Roberto Marino
    Affiliato

  • Debora Rosati
    Coordinatrice
P.zza Cavour, 4 02100 Rieti (RI)
Zona: Rieti - Terminillo
Mostra su mappa
Orari: lunedì-venerdì 08.30-13.00/15.00-19.30; sabato 08.30-17.30
Affiliato
Grupposabinacavour Srl
P.zza Cavour, 4 02100 Rieti (RI)

2025 Tecnocasa Franchising S.p.A. - P. IVA 08365160152 - Via Monte Bianco 60/A 20089 Rozzano (MI). Ogni agenzia ha un proprio titolare ed è autonoma. Privacy policy | Policy utilizzo | Cookie policy